Suzunomiya

  • ¥56,900
  • ~¥84,100
大阪府堺市中区八田北町10-31

Suzunomiya

大阪府堺市中区八田北町10-31
  • ¥56,900
  • ~¥84,100

Description

Floor plan Floor Area(㎡) Monthly Rent(yen) Number of Rooms
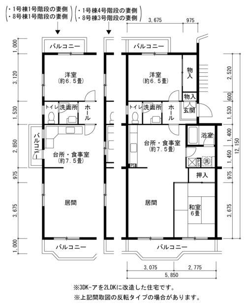
2LDK
63 ~ 68 ¥56,900 ~ 70,100 122
3DK
63 ~ 65 ¥56,900 ~ 68,400 334
3LDK
68 ~ 69 ¥60,700 ~ 72,200 234
4LDK
88 ¥74,100 ~ 84,100 30

Semboku Rapid Line    Fukai    10 minutes by Nankai Bus    2 minutes walk
JR Hanwa Line    Tsukuno    10 minutes by Nankai Bus    2 minutes walk

Details

Updated on 2021/05/28 5:43
  • Property ID: oosaka204
  • Price: ¥56,900
  • Property Type: JR Hanwa Line, Semboku Rapid Line
  • Property Status: Fukai, Tsukuno
  • Interception: 2LDK, 3DK, 3LDK, 4LDK

Additional details

  • 共益費: ¥2,030
  • 総戸数:
  • 階数:
  • 駐車場: 空き状況要確認
  • 管理開始: 1985.3 ~ 1987.4[S60.3 ~ S62.4]
  • Address 大阪府堺市中区八田北町10-31
  • City Ōsaka-fu sakaishinaka-ku
  • State/county Osaka
  • Area 関西

Similar Listings

Compare listings

Compare
お問合せ
  • お問合せ